Property Overview
10651 Hampton Street is a residential development site planned for townhouse construction, designed to support modern multi-family living in a high-demand market.
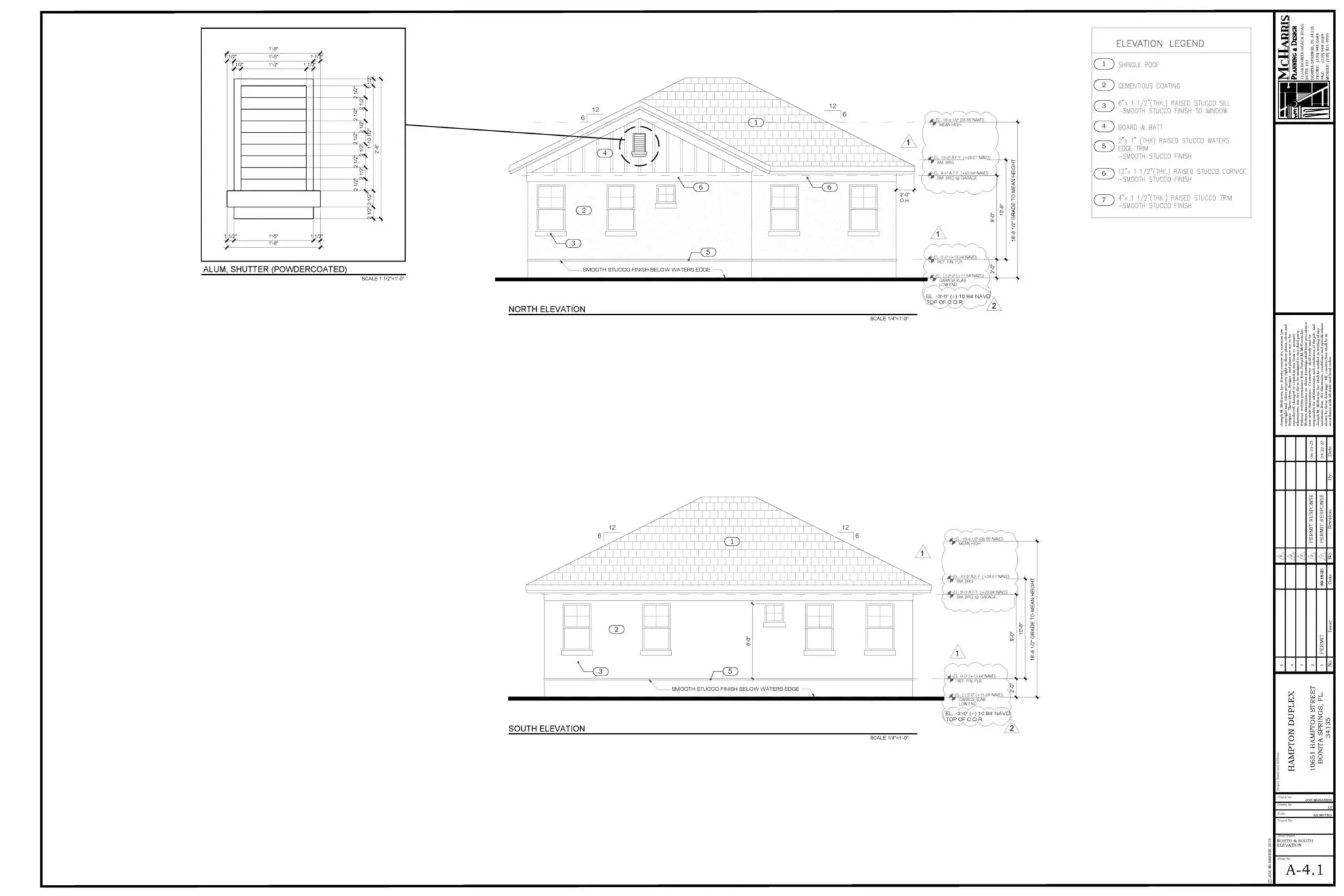
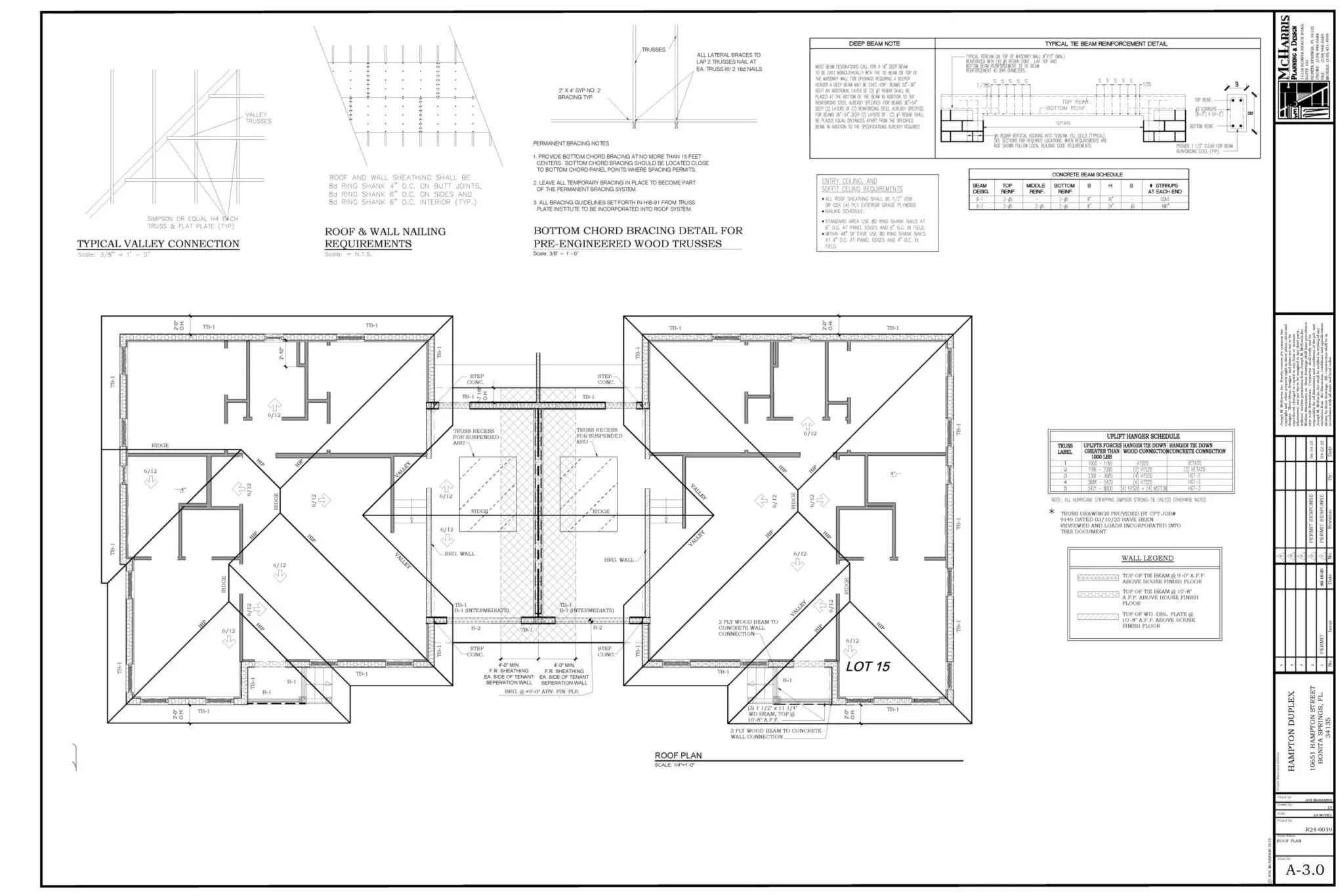
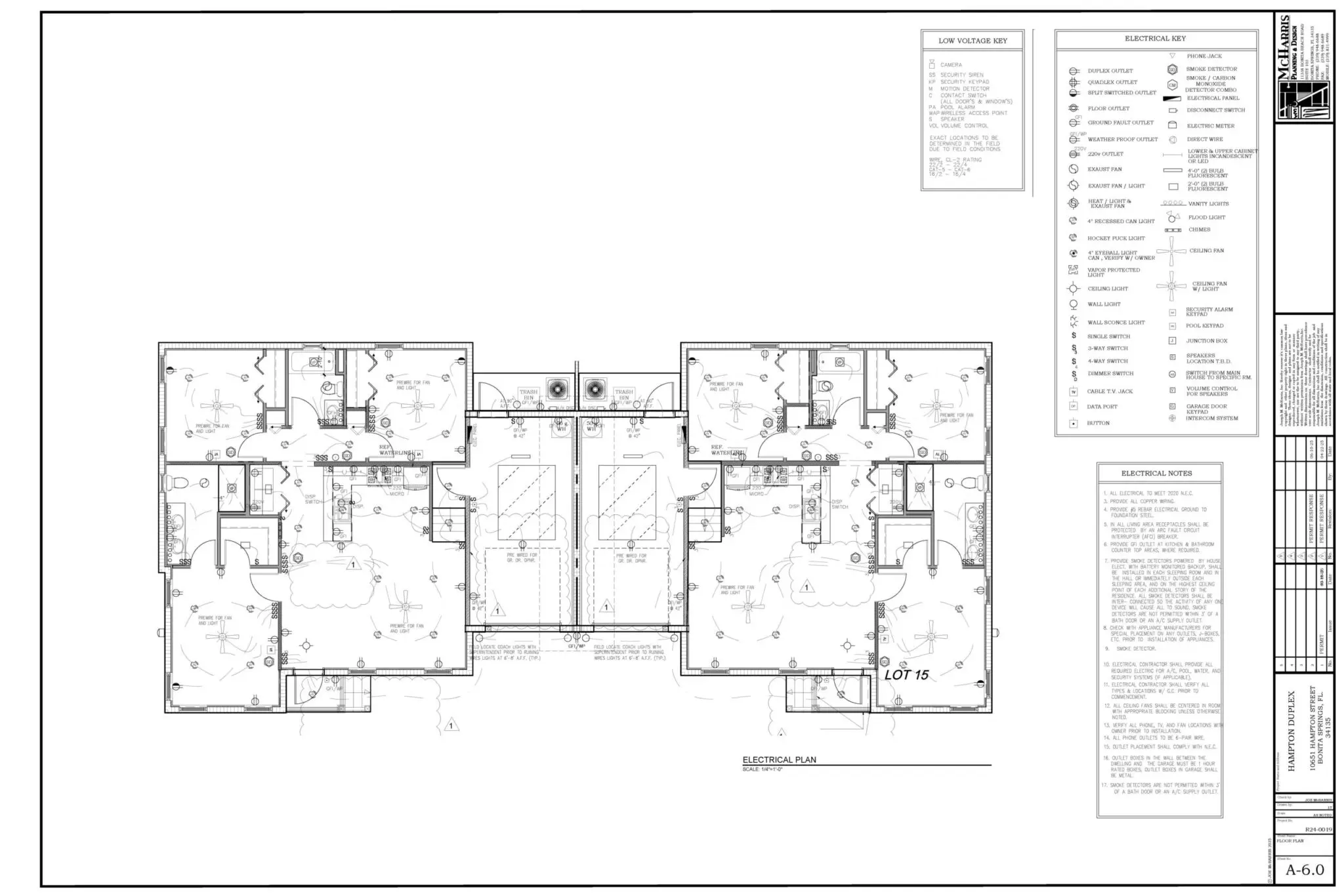
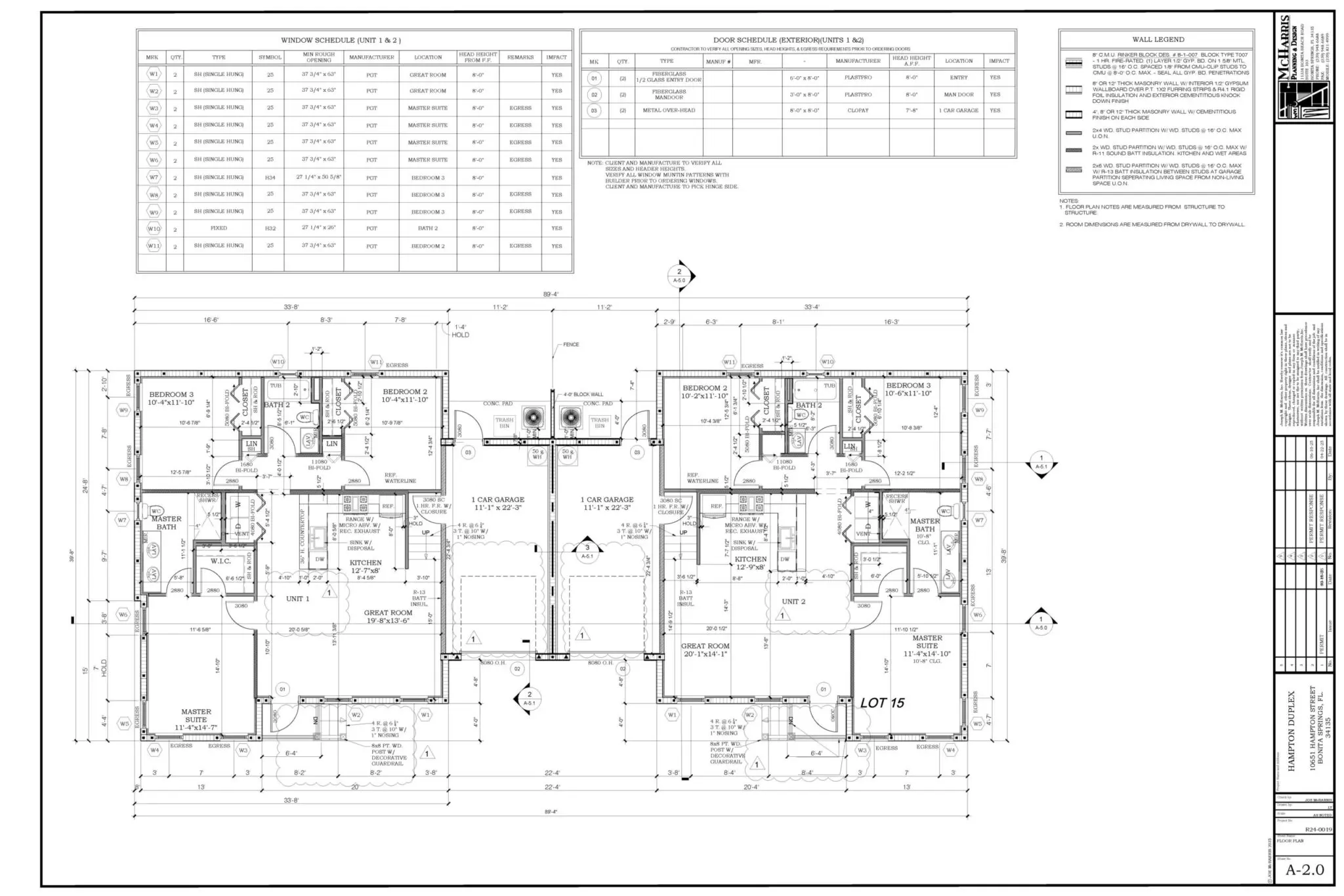
Project’s Set of Plans
Location & Accessibility
The property offers convenient access to key destinations throughout Bonita Springs and Southwest Florida.
Property Details
The site is positioned in a desirable neighborhood with strong residential appeal and accessibility.
- Total site area: 5,021.34 sq ft
- Land size: 0.12 acres
- Zoning: Townhomes or multi-family housing
- Proposed Project for a three-bedroom, two-bathroom Duplex
Bonita Springs, Florida Market Overview
Bonita Springs is one of Southwest Florida’s fastest-growing cities, located between Naples and Cape Coral.
- Population growth: Increased by 7.5% in 2020
- Current population: Approximately 65,000 residents
- Strong residential and investor demand
Lifestyle and Community
Bonita Springs offers a desirable coastal lifestyle supported by steady residential and commercial growth.
The area features white-sand beaches along the Gulf of Mexico, freshwater inlets on the Estero River, and comfortable year-round weather. Residents benefit from award-winning residential communities, restaurants, shopping, retail services, commercial parks, and office space—driving continued housing demand.








